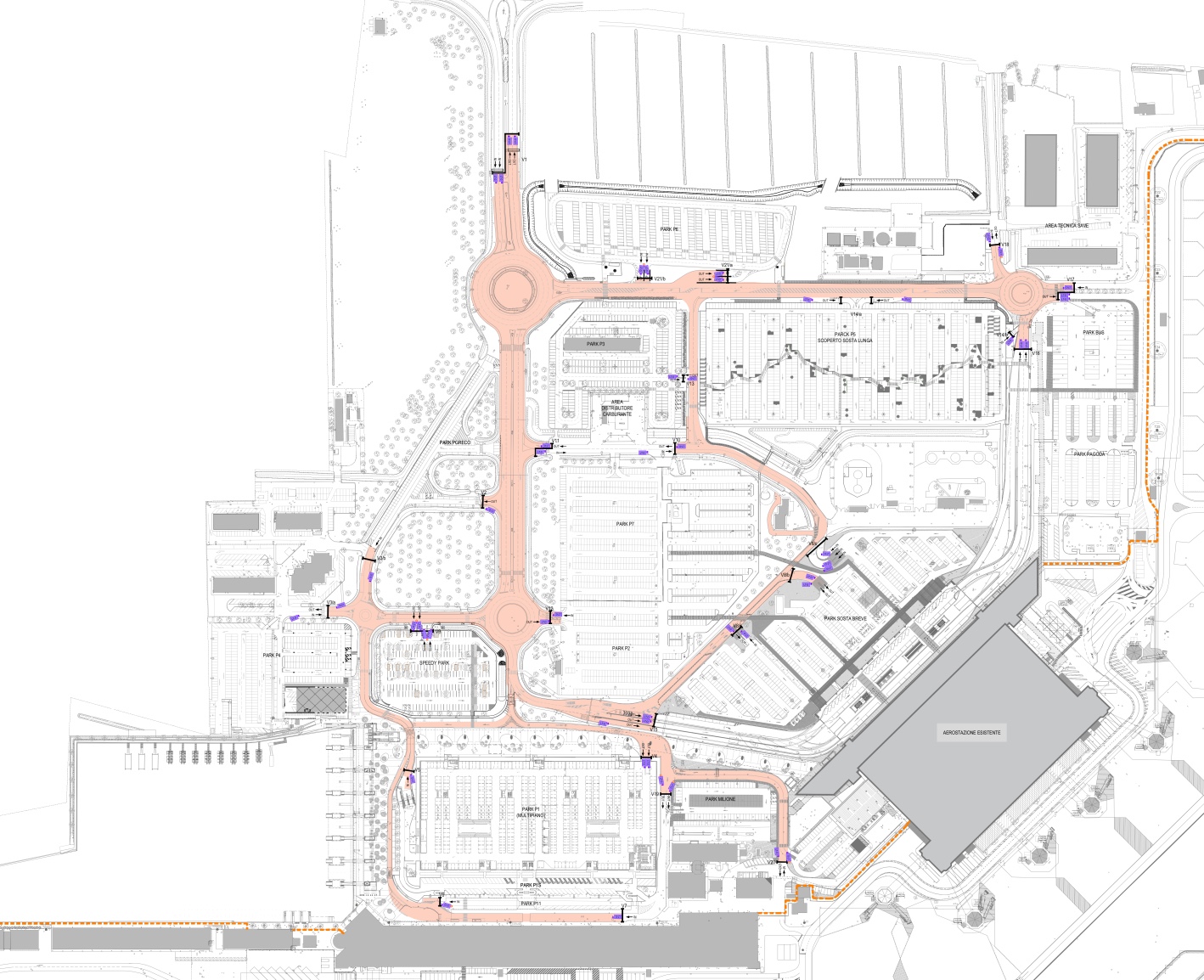
Dal prossimo 1/10 parte a Venezia l’effettivo uso della ZTC – Zona a Traffico Controllato. Praticamente sono stati installati dei varchi di accesso tra l’ingresso ed i parcheggi per monitorare chi circola nelle zone comuni. La permanenza nelle aree ocra della mappa e’ di massimo 7 minuti da entrata e uscita da questi varchi telematici che registrano oltre al tempo anche le targhe dei mezzi. L’occhio elettronico multerà chi si trattiene oltre i 7 minuti con sanzioni da 38 a 156€ per i motocicli e da 81 a 321€ per i restanti mezzi. L’entrata in un parcheggio interrompe il tempo di occupazione della ZTC. Le multe non saranno incassate ne da SAVE o ENAC. La ZTC e’ stata creata per andare incontro alle maggiori necessità di sicurezza ed apposita ordinanza di ENAC e’ stata emessa.
Nell’immagine che si trova qui sotto si vede l’area interessata dalla ZTC ed i varchi telematico di entrata e uscita. L’area colorata e’ quella regolamentata e dove viene applicata la durata massima di permanenza di 7 minuti, pena la sanzione automatica.

